[45+] Plc Panel Layout, What Is A Control Panel And Its Types? - Instrumentation Tools

Plc Panel Layout Checklist Control Panel

Control panels

Control panels. Electrical panel board wiring diagram pdf fresh 41 awesome circuit. What is a control panel and its types?. Control panels

PLC Based Control Panel Manufacturer in Maharashtra India by Ab

PLC Based Control Panel Manufacturer in Maharashtra India by Ab

PLC Panel at Best Price in India

PLC Panel at Best Price in India

How To Design Plc Control Panels

How To Design Plc Control Panels

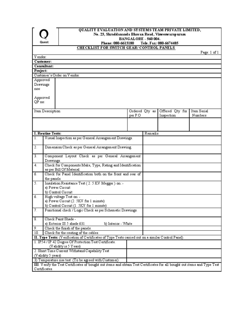
Checklist Control Panel

Checklist Control Panel

DCS System Layout and its Different Parts - Instrumentation Tools

DCS System Layout and its Different Parts - Instrumentation Tools

Komentar